Planning
160401 | Park and ride system for visitors travelling to the Isles of Scilly planned for land near Lelant | The Cornishman
Via http://www.cornishman.co.uk/New-park-ride-Isles-Scilly-set-land-near-Lel...
Park and ride system for visitors travelling to the Isles of Scilly planned for land near Lelant
| Posted: April 01, 2016 read more »
PA15/10545 | Proposed Temporary use of agricultural land as relief parking for the Scilly Isles during the holiday seasons due t
Park and ride system for visitors travelling to the Isles of Scilly planned for | Hayle development discussion group | Facebook
Cranford - 3rd application for the Marsh Lane site | Facebook
Cranford Developments - Marsh Lane
Cranford have another proposal:
23/03/16 1.30pm Pre-application Briefing re Cranfords Development Council Chamber, New County Hall
Cranford Developments
Little Kinvaston, Watling Street, Gailey, Staffordshire, ST 19 5PR
Tel: 01902 62 38 38 Fax: 01902 62 38 47 www.cranforddevelopments.com
Cranford Developments Limited Registered in England & Wales No. 05263135 Registered Offices: Little Kinvaston, Watling Street,
Gailey, Staffordshire, ST 19 5PR
Comments on behalf of the Steamship company 02/02/2016
Via http://docs.planning.cornwall.gov.uk/rpp/showimage.asp?j=PA15/10545&inde...
To: Pitt Chloe[Chloe.Pitt@cornwall.gov.uk]
Cc: McKenna Jim CC[jmckenna@cornwall.gov.uk]; Broomhead
Mark[Mark.Broomhead@cornwall.gov.uk]
From: Robert Goldsmith
Sent: Tue 02/02/2016 2:12:21 PM
Importance: Normal
Subject: RE: PA15/10545
MAIL_RECEIVED: Tue 02/02/2016 2:12:29 PM
Dear Chloe read more »
PA15/03669 | Reserved Matters Application For The Creation Of New Footpath Through Isis Gardens, Connecting Foundry Square To Th
RESERVED MATTERS APPLICATION FOR THE CREATION OF NEW FOOTPATH THROUGH ISIS GARDENS, CONNECTING FOUNDRY SQUARE TO THE PUBLIC REALM AND DEVELOPMENT ON SOUTH QUAY. SOUTH QUAY, HAYLE - South Quay Hayle Cornwall
Ref. No: PA15/03669 | Received date: Mon 20 Apr 2015 | Status: Pending Decision | Case Type: Planning Application read more »
PA16/02108 | Discharge of condition 8 in regards to PA13/05516 - Access To South Quay Hayle Cornwall | PA12/10064
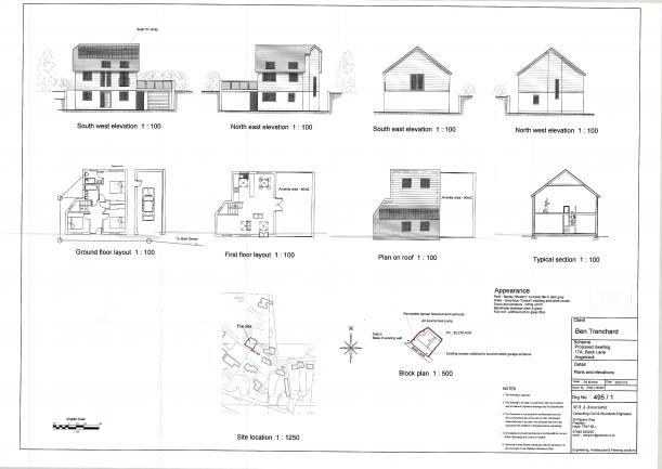
PA16/01169 | Construction of 2 storey dwelling and attached garage to replace previous approval PA14/12226 | 17A Back Lane Angar
Construction of 2 storey dwelling and attached garage to replace previous approval PA14/12226 - 17A Back Lane Angarrack Hayle Cornwall TR27 5JE
Ref. No: PA16/01169 | Received date: Fri 05 Feb 2016 | Status: Pending Consideration | Case Type: Planning Application read more »
160310 | HAYLE HARBOUR - NORTH QUAY I attended an interesting meeting yesterday as mayor, at the Harbour Office in Hayle

Appeal Allowed | PA15/01953 | Construction of a pair of semi-detached dwellings - 12 Back Lane | Decision APP/D0840/W/15/3121461
Extract of permission - via http://docs.planning.cornwall.gov.uk/rpp/showimage.asp?j=PA15/01953&inde...
ANNEX TO APPEAL DECISION APP/D0840/W/15/3121461
Conditions:
1) The development hereby permitted shall begin not later than three years
from the date of this decision.
2) The development hereby permitted shall be carried out in accordance
with the following approved plans: Proposed Floor Plans 386/2; and
Mixed – site location and elevations 386/3. read more »
Appeal letter | PA15/02777 | Proposed residential development of 222 dwellings, associated public open space and provision
160218 | Hayle Town Council to hear application for 138 homes tonight | The Cornishman
Via http://www.cornishman.co.uk/Hayle-Town-Council-hear-application-138-home...
Hayle Town Council to hear application for 138 homes tonight
| Posted: February 18, 2016 read more »
160218 | This one is new to me - Hayle Town Council to hear application for 138 | Hayle development discussion group | Facebook
160122 | Hayle Town Council voted in favour of planning application R&J | Hayle development discussion group | Facebook
Ben Cwilewicz shared The Cornishman's post.
160122 | Hayle Town Council support application to turn R&J warehouse building into 70 homes | The Cornishman
Via http://www.cornishman.co.uk/Hayle-Town-Council-support-application-turn-...
Hayle Town Council support application to turn R&J warehouse building into 70 homes
| Posted: January 22, 2016 read more »
- Login or register to post comments
- Visit Change planned for industry site | ThisisCornwall.co.uk
- Permalink
PA15/10626 | Approved with conditions Proposed new dwelling (redesign & positioning of Planning Approval PA10/04077 & PA11/06433
Via http://planning.cornwall.gov.uk/online-applications/applicationDetails.d...
Proposed new dwelling (redesign and positioning of Planning Approval PA10/04077 and PA11/06433) - Land Adj To Number 16 Back Lane Angarrack Cornwall TR27 5JE
Ref. No: PA15/10626 | Received date: Wed 11 Nov 2015 | Status: Approved with conditions | Case Type: Planning Application read more »
100629 | W1/08-0613
Hayle Harbour North Quay Hayle Cornwall TR27 4BL
151215 Hayle - Planning for RJs | PA15/10513 | Demolition of existing warehouse type building comprising 3,600 square metres of
Demolition of existing warehouse type building comprising 3,600 square metres of floorspace and the erection of a 70 unit residential development comprising 2no. 2-bed houses, 1no. 4-bed house, 10no one-bed flats and 57no two-bed flats, revised and improved access road, parking provision, landscaping, cycle and bin storage, and retention of existing 'scoria' block retaining wall at the rear of the site. read more »
- Login or register to post comments
- Visit Change planned for industry site | ThisisCornwall.co.uk
- Permalink


