Village News

Christmas Lights

PA21/02600 | Alterations and extension to a dwelling | Ashleen Steamers Hill Angarrack Hayle Cornwall TR27 5JB

Alterations and extension to a dwelling - Ashleen Steamers Hill Angarrack Hayle Cornwall TR27 5JB

Ref. No: PA21/02600 | Received date: Tue 09 Mar 2021 | Status: Pending Consideration | Case Type: Planning Application 


 

 

 

Reference PA21/02600
Alternative Reference n/a
Application Validated Mon 29 Mar 2021
Address Ashleen Steamers Hill Angarrack Hayle Cornwall TR27 5JB
Proposal Alterations and extension to a dwelling
Status Awaiting decision
Appeal Status Unknown
Appeal Decision  

There are 10 documents associated with this application.

There is 1 case associated with this application.

There is 1 property associated with this application.

 

 


 

 


Date Published Document Type Measure Drawing Number Description View
29 Mar 2021 Plan - Site Location Measure document icon 01A   View document icon
29 Mar 2021 Plan - Existing Block Measure document icon 02A   View document icon
29 Mar 2021 Plan - Proposed Block Measure document icon 05A   View document icon
29 Mar 2021 Assessment - Flood Risk Measure document icon    View document icon
09 Mar 2021 Application Form Measure document icon  APPLICATION FORM View document icon
09 Mar 2021 Plan - Existing Floor Measure document icon 1207.03 GROUND FLOOR AS EXISTING View document icon
09 Mar 2021 Plan - Existing Elevations Measure document icon 1207.04 ELEVATIONS - EXISTING View document icon
09 Mar 2021 Plan - Proposed Floor Measure document icon 1207.06 GROUND FLOOR PLAN LAYOUT - PROPOSED View document icon
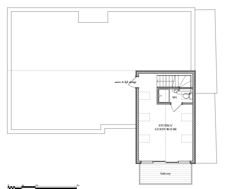
09 Mar 2021 Plan - Proposed Floor Measure document icon 1207.07 FIRST FLOOR PLAN LAYOUT - PROPOSED View document icon
09 Mar 2021Plan - Proposed Elevations Measure document icon 1207.08ELEVATIONS - PROPOSED View document icon

 

 

 

First Floor - Studio/Guest Room

Book page

TitleCreated
2026-EXTENDED-17th April 2026 to 22nd April- Resurfacing Steamers Hill; Hatchs Hill; Angarrack Lane | 1 Apr 07:30 - 17 Apr 23:59 5 days 2 hours agoBook page
2026-April-POSTPONED-planned improvements i.e. install footpath, paint double yellow lines junction Grist Lane Hatchs Hill 1 week 1 day agoBook page
2026 - Resurfacing Steamers Hill; Hatchs Hill; Angarrack Lane | 1 Apr 07:30 - 17 Apr 23:59 2 weeks 6 days agoBook page
250330; Closure order:30 Mar-17 Apr 2026; 07:30-17:00; Clearway Parking Zone; Hatchs Hill, Steamers Hill and Angarrack Lane 4 weeks 1 day agoBook page
Traffic/Roads - Marsh/Grist Lane - Traffic counts 2019 onwards 15 weeks 5 days agoBook page
Approved with conditions | PA25/07094 | First floor extension over existing garage to create Art studio with guest bedroom... 20 weeks 1 day agoBook page
PA25/07094 | First floor extension over existing garage to create Art studio with guest bedroom, covered parking area below | As 21 weeks 9 hours agoBook page
251027 | 20mph Monitoring—Hayle & St Ives Speed Data; Phase 3a-May-Jun 24 v Sep-Oct 24; Steamers Hill; Gwinear;Carbis;Nancledra 24 weeks 6 days agoBook page
PA25/07184 | Retention of 4no. existing holiday pods, swimming pool, incidental building, extended driveway and annexe converted 25 weeks 3 days agoBook page
251009 | Stark reality of life in Cornwall revealed through 2025 Vital Signs Report 27 weeks 4 days agoBook page
251010 | Cornwall backs 20mph rollout; St Austell's the only town to reject the plans 27 weeks 4 days agoBook page
250930 | Cornwall’s 20 mph speed limits have made the roads much safer 29 weeks 10 hours agoBook page