- Apr 22: EXTENDED to 22 Apr;Closure:30 Mar-22 Apr 2026; 07:30-17:00; Clearway Parking Zone; Hatchs Hill, Steamers Hill and Angarrack Lane (1 day)
- Apr 24: Mobile Library | Friday 24 Apr 2026 (4 days)
- May 22: Mobile Library | Friday 22 May 2026 (32 days)
- Jun 19: Mobile Library | Friday 19 Jun 2026 (60 days)
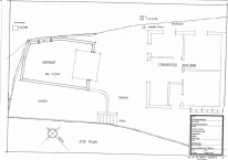
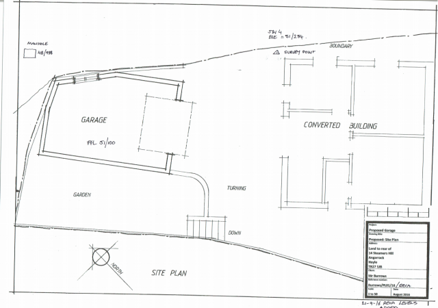
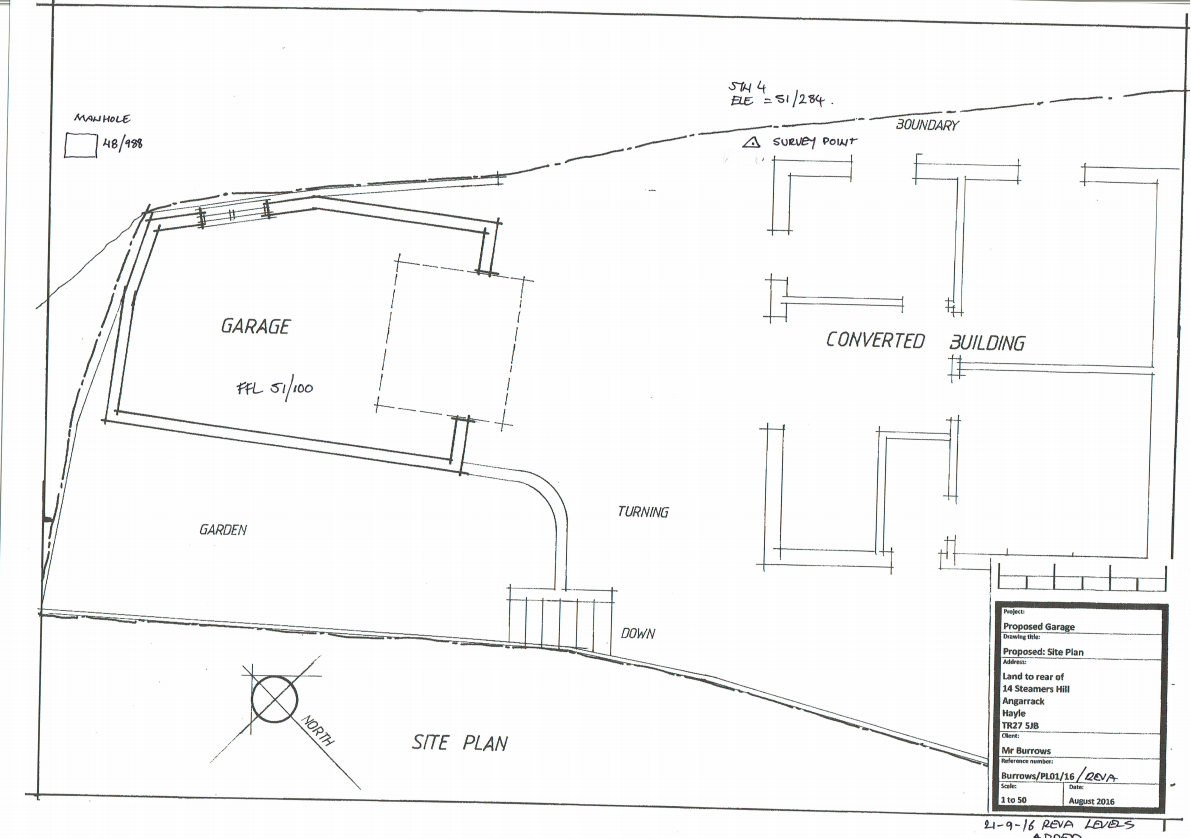
PA16/08443 | Erection of a detached garage | Land And Garage East Of 14 Back Lane Angarrack Cornwall TR27 5JE
Submitted by via Cornwall Pl... on Mon, 21/11/2016 - 12:59.
Erection of a detached garage. - Land And Garage East Of 14 Back Lane Angarrack Cornwall TR27 5JE
Ref. No: PA16/08443 | Received date: Sat 10 Sep 2016 | Status: Approved with conditions | Case Type: Planning Application
See original Decision Notice at http://docs.planning.cornwall.gov.uk/rpp/showimage.asp?j=PA16/08443&index=13284965&DB=8&DT=4
Cornwall Council Dolcoath Avenue Camborne Cornwall TR14 8SX Email: planninghouseholder@cornwall.gov.uk Tel: 0300 1234151 Web: www.cornwall.gov.uk Application number: PA16/08443 Agent: Mr N Winn Tresaret Whitecross Penzance TR20 8BS Applicant: Mr Mitch Burrows Land And Garage East Of 14 Back Lane Angarrack Cornwall TR27 5JE Town And Country Planning Act 1990 (As Amended) Town And Country Planning (Development Management Procedure) (England) Order 2015 Grant of Conditional Planning Permission CORNWALL COUNCIL, being the Local Planning Authority, HEREBY GRANTS CONDITIONAL PERMISSION, subject to the conditions set out on the attached schedule, for the development proposed in the following application received on 10 September 2016 and accompanying plan(s): Description of Development: Erection of a detached garage. Location of Development: Land And Garage East Of 14 Back Lane Angarrack Cornwall TR27 5JE Parish: Hayle YOUR ATTENTION IS DRAWN TO THE ATTACHED NOTES. DATED: 16 November 2016 Phil Mason Service Director Planning and Sustainable Development ACFULZ SCHEDULE ATTACHED TO APPLICATION & DECISION NO: PA16/08443 CONDITIONS: 1 The development hereby permitted shall be begun before the expiration of 3 years from the date of this permission. Reason: In accordance with the requirements of Section 91 of the Town and Country Planning Act 1990 (as amended by Section 51 of the Planning and Compulsory Purchase Act 2004). 2 The development hereby permitted shall be carried out in accordance with the plans listed below under the heading "Plans Referred to in Consideration of this Application". Reason: 3 For the avoidance of doubt and in the interests of proper planning. Notwithstanding details shown on any approved plans, surface water run off from the development hereby permitted shall not drain to the sewer, but shall instead be disposed of via an infiltration system in accordance with infiltration guidance in BRE 365 or CIRIA 156 using a 10-year return period design standard, unless otherwise agreed in writing by the Local Planning Authority. Reason:To avoid flooding and in the interests of water quality and the residential amenities of future occupiers and in accordance with the aims and intentions of paragraphs 94 and 103 of the National Planning Policy Framework DATED: 16 November 2016 Phil Mason Service Director Planning and Sustainable Development ACFULZ SCHEDULE ATTACHED TO APPLICATION & DECISION NO: PA16/08443 PLANS REFERRED TO IN CONSIDERATION OF THIS APPLICATION: Proposed BURROWS/PL01/16 A received 21/09/16 Proposed BURROWS/PL02/16 A received 21/09/16 Site/location Plan PLAN 1 received 21/09/16 In dealing with this application, the local planning authority have worked with the applicant/agent in a positive and proactive manner based on seeking solutions to problems arising during the processing of this planning application in accordance with the National Planning Policy Framework. Actions taken may include but are not limited to: Provision of pre-application advice through extensive guidance available on the Council's website Discussions/negotiations ongoing with LPA throughout determination of planning application as necessary Discussion regarding drafting of planning conditions as necessary Dedicated phone number of the case officer for the applicant/agent Close liaison with the Town and Parish Councils in accordance with the protocol DATED: 16 November 2016 Phil Mason Service Director Planning and Sustainable Development ACFULZ NOTES Appeals to the Secretary of State If the applicant is aggrieved by the decision of the local planning authority to refuse permission for the proposed development or to grant it subject to conditions, then they may appeal to the Secretary of State under section 78 of the Town and Country Planning Act 1990. If you want to appeal, then you must do so within 6 months of the date of this notice (or 12 weeks from the date of this notice in the case of householder appeals made in relation to applications submitted on or after 6 April 2009). Appeals must be made to the Planning Inspectorate using a form which can be obtained from the Planning Inspectorate at Temple Quay House, 2 The Square, Temple Quay, Bristol BS1 6PN or online at www.planningportal.co.uk/pcs . A copy of the completed appeal form must also be submitted to the Council. The Secretary of State can allow a longer period for giving notice of an appeal, but he will not normally be prepared to use this power unless there are special circumstances which excuse the delay in giving notice of appeal. The Secretary of State need not consider an appeal if it seems to him that the local planning authority could not have granted planning permission for the proposed development or could not have granted it without the conditions they imposed, having regard to the statutory requirements, to the provisions of any development order and to any directions given under a development order. In practice, the Secretary of State does not refuse to consider appeals solely because the local planning authority based their decision on a direction given by him. Purchase Notices If either the local planning authority or the Secretary of State refuses permission to develop land or grants it subject to conditions, the owner may claim that he can neither put the land to a reasonably beneficial use in its existing state nor render the land capable of a reasonably beneficial use by the carrying out of any development which has been or would be permitted. In these circumstances, the owner may serve a purchase notice on Cornwall Council. This notice will require the Council to purchase his interest in the land in accordance with the provisions of Part VI of the Town and Country Planning Act 1990. If this is a decision on a planning application relating to the same or substantially the same land and development as is already the subject of an enforcement notice, if you want to appeal against your local planning authority’s decision on your application, then you must do so within 28 days of the date of this notice. If an enforcement notice is served relating to the same or substantially the same land and development as in your application and if you want to appeal against your local planning authority’s decision on your application, then you must do so within 28 days of the date of service of the enforcement notice. Mr N Winn Tresaret Whitecross Penzance TR20 8BS Your ref: Mr M Burrows My ref: PA16/08443 Date: 16 November 2016 Dear Sir/Madam Erection of a detached garage.
Land And Garage East Of 14 Back Lane Angarrack Cornwall
With reference to this planning application, I enclose the Decision Notice granting permission. If conditions have been included that must be complied with before the commencement of the development, e.g. “No development shall commence before ….”, and this is not done, the development cannot be validly commenced even if it is within the time limit set by Condition. If details are required I look forward to receiving them. Application forms can be found on http://www.planningportal.co.uk/uploads/appPDF/P0810Form027_england_en.p... . Your attention is drawn to the fees to discharge planning conditions under The Town and Country Planning (Fees for Applications, Deemed Applications, Requests and Site Visits) (England) Regulations 2012: £97 (per request) for applications not falling within fee categories 6 or 7 (nonhouseholder applications) £28 (per request) where the request relates to an application for works to an existing dwelling, or within the curtilage of such, falling within fee categories 6 or 7 (householder applications only) You may wish to take the opportunity to submit details to discharge more than one condition per request. Yours faithfully Chris Williams Development Officer Planning and Sustainable Development Service Tel: 01209 616977 COND Planning and Sustainable Development Service Cornwall Council Dolcoath Avenue Camborne Cornwall TR14 8SX planninghouseholder@cornwall.gov.uk
- Printer-friendly version
- Login or register to post comments
- Permalink
Contributions
- Angarrack Defibrillator Team (25)
- Angarrack Inn (336)
- Angarrack Methodist Chapel (3)
- Carol (15)
- Gail (1)
- GordonG (12)
- Hayle Development Group on Facebook (5)
- Hayle Harbour Authority (4)
- Hayle Town Council (5)
- louise (1)
- Lynne (111)
- Mal (1)
- MattBuckley66 (9)
- Neil (22)
- Neils Garden Care (9)
- Russell (21)
- Secretary - Christmas Lights (141)
- Steve (3)
- webmaster (5122)
Book page
Similar
- Submission of details to discharge condition 6 in respect of decision notice PA16/01169 - 17A Back Lane Angarrack H | PA16/01169
- Approved with conditions | PA16/01169 | Construction of 2 storey dwelling and attached garage to replace previous approval PA14/
- PA16/01169 | Construction of 2 storey dwelling and attached garage to replace previous approval PA14/12226 | 17A Back Lane Angar
- Appeal Allowed | PA15/01953 | Construction of a pair of semi-detached dwellings - 12 Back Lane | Decision APP/D0840/W/15/3121461
- PA15/10626 | Approved with conditions Proposed new dwelling (redesign & positioning of Planning Approval PA10/04077 & PA11/06433
Similar across site
- PA16/08443 | Erection of a detached garage | Land And Garage East Of 14 Back Lane Angarrack Cornwall TR27 5JE
- Submission of details to discharge condition 6 in respect of decision notice PA16/01169 - 17A Back Lane Angarrack H | PA16/01169
- Approved with conditions | PA16/01169 | Construction of 2 storey dwelling and attached garage to replace previous approval PA14/
- PA16/01169 | Construction of 2 storey dwelling and attached garage to replace previous approval PA14/12226 | 17A Back Lane Angar
- Appeal Allowed | PA15/01953 | Construction of a pair of semi-detached dwellings - 12 Back Lane | Decision APP/D0840/W/15/3121461








Recent comments
11 weeks 5 days ago
16 weeks 5 days ago
16 weeks 5 days ago
31 weeks 5 days ago
51 weeks 2 days ago
51 weeks 2 days ago
51 weeks 2 days ago
51 weeks 2 days ago
1 year 21 weeks ago
1 year 35 weeks ago