- Apr 22: EXTENDED to 22 Apr;Closure:30 Mar-22 Apr 2026; 07:30-17:00; Clearway Parking Zone; Hatchs Hill, Steamers Hill and Angarrack Lane (8 hours)
- Apr 24: Mobile Library | Friday 24 Apr 2026 (2 days)
- May 22: Mobile Library | Friday 22 May 2026 (30 days)
- Jun 19: Mobile Library | Friday 19 Jun 2026 (58 days)
PA17/01125 | Application for variation of condition 2 (plans) in respect of Decision Notice PA15/01953 - 12 Back Lane A
Submitted by via Cornwall Pl... on Fri, 10/03/2017 - 12:46.
Application for variation of condition 2 (plans) in respect of Decision Notice PA15/01953 - 12 Back Lane Angarrack Cornwall
Ref. No: PA17/00288 | Received date: Thu 12 Jan 2017 | Status: Approved with conditions | Case Type: Planning Application
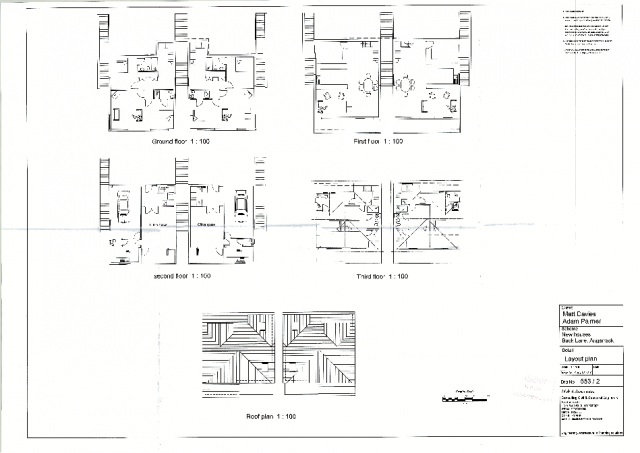
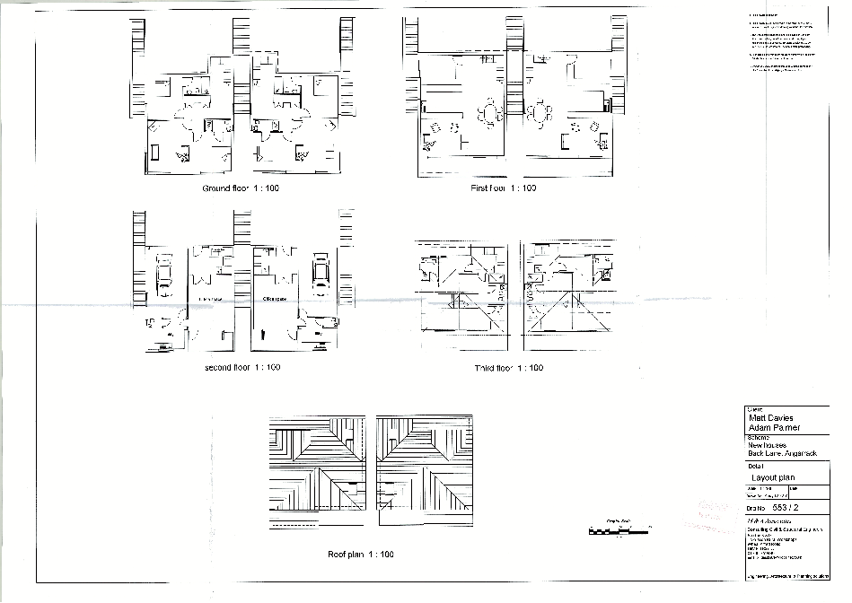
The applicants wish the dwellings to be detached.
Case Number :
| PA17/00288 |
| APPLICATION FORM |
| Name or Detail | Received Date | |
![]() |
AT Latham | 12/01/2017 |
![]() |
Application for removal or variation of a condition following grant of planning permission | 12/01/2017 |
| DECISION NOTICE |
| Name or Detail | Received Date | |
![]() |
PA15/01953 | 17/01/2017 |
![]() |
09/03/2017 |
| PLAN - PROPOSED FLOOR |
| Name or Detail | Received Date | |
![]() |
553/2 | 12/01/2017 |
| PLAN - PROPOSED MIXED |
| Name or Detail | Received Date | |
![]() |
553/1 | 12/01/2017 |
- Printer-friendly version
- Login or register to post comments
- Permalink
Contributions
- Angarrack Defibrillator Team (25)
- Angarrack Inn (336)
- Angarrack Methodist Chapel (3)
- Carol (15)
- Gail (1)
- GordonG (12)
- Hayle Development Group on Facebook (5)
- Hayle Harbour Authority (4)
- Hayle Town Council (5)
- louise (1)
- Lynne (111)
- Mal (1)
- MattBuckley66 (9)
- Neil (22)
- Neils Garden Care (9)
- Russell (21)
- Secretary - Christmas Lights (141)
- Steve (3)
- webmaster (5122)
Book page
Similar
- PA17/01125 | Submission of details to discharge conditions 3, 4, 5, 6 and 7 in respect of decision notice PA15/01953
- PA17/00288 | Application for removal of condition 2 in respect of Decision Notice PA15/01953 - 12 Back Lane Angarrack PA15/01953
- PA16/08443 | Erection of a detached garage | Land And Garage East Of 14 Back Lane Angarrack Cornwall TR27 5JE
- Submission of details to discharge condition 6 in respect of decision notice PA16/01169 - 17A Back Lane Angarrack H | PA16/01169
- Approved with conditions | PA16/01169 | Construction of 2 storey dwelling and attached garage to replace previous approval PA14/
Similar across site
- PA17/01125 | Application for variation of condition 2 (plans) in respect of Decision Notice PA15/01953 - 12 Back Lane A
- PA17/01125 | Submission of details to discharge conditions 3, 4, 5, 6 and 7 in respect of decision notice PA15/01953
- PA17/00288 | Application for removal of condition 2 in respect of Decision Notice PA15/01953 - 12 Back Lane Angarrack PA15/01953
- PA16/08443 | Erection of a detached garage | Land And Garage East Of 14 Back Lane Angarrack Cornwall TR27 5JE
- Submission of details to discharge condition 6 in respect of decision notice PA16/01169 - 17A Back Lane Angarrack H | PA16/01169







Recent comments
11 weeks 6 days ago
16 weeks 6 days ago
16 weeks 6 days ago
31 weeks 6 days ago
51 weeks 3 days ago
51 weeks 3 days ago
51 weeks 3 days ago
51 weeks 3 days ago
1 year 21 weeks ago
1 year 35 weeks ago